web builder













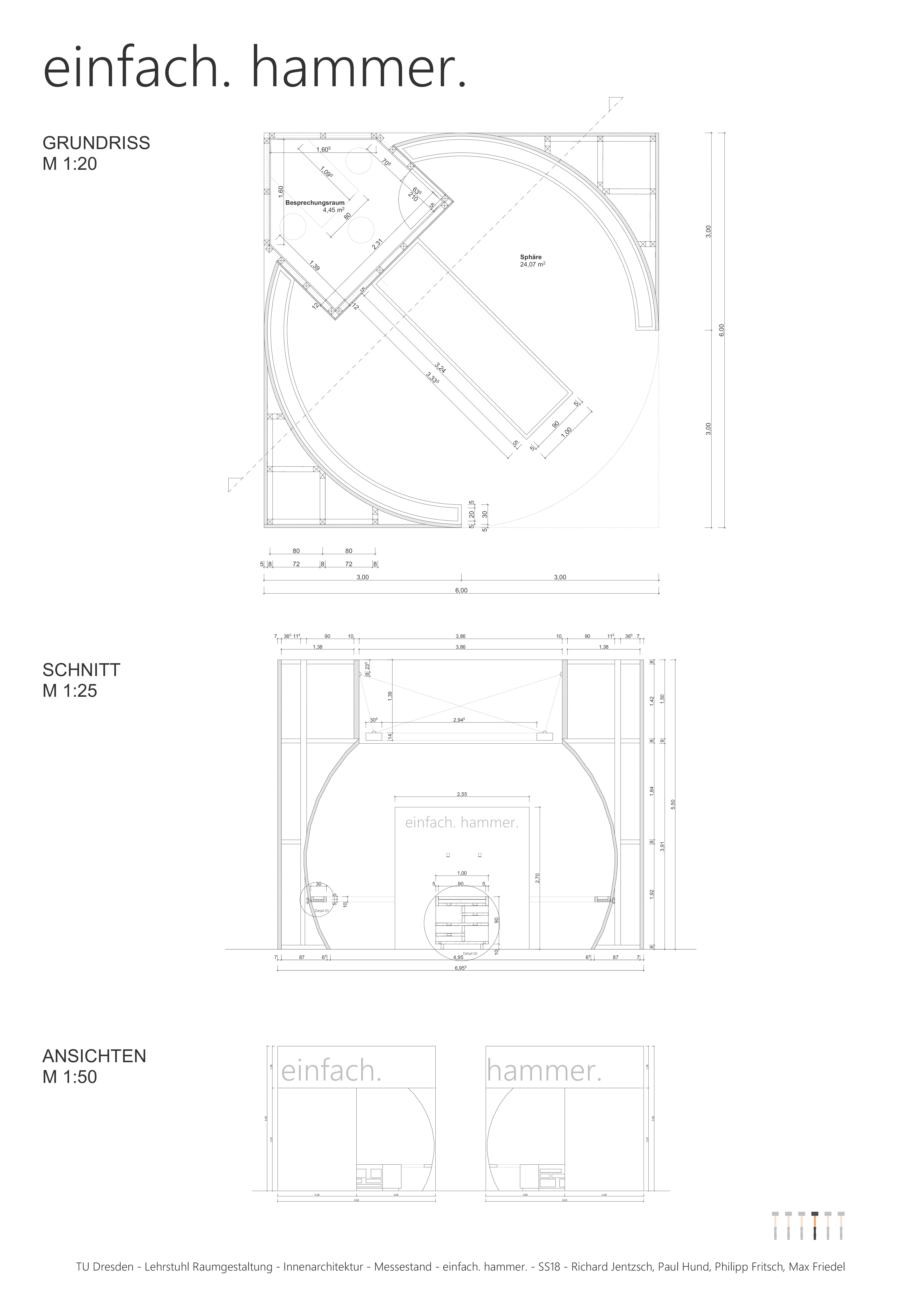
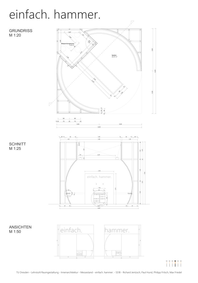
EINFACH.HAMMER

Entwurf eines Messestandes.


Modul Innenarchitektur

Entstanden in Zusammenarbeit mit drei Kommilitonen.

Professur für Gestaltungslehre
Technische Universität Dresden

Sommersemester 2018