free site design templates













DER WEG DES WEINS

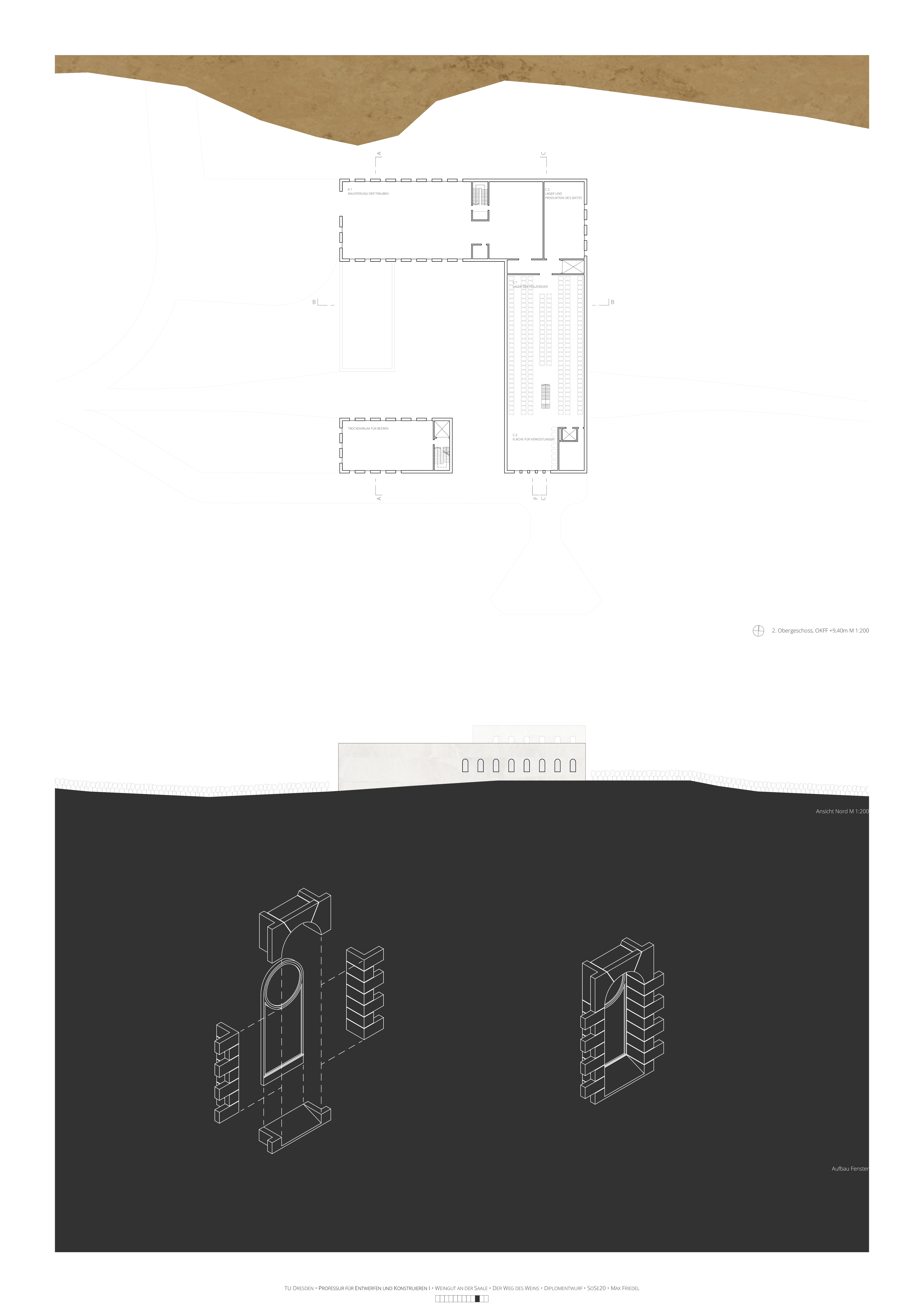
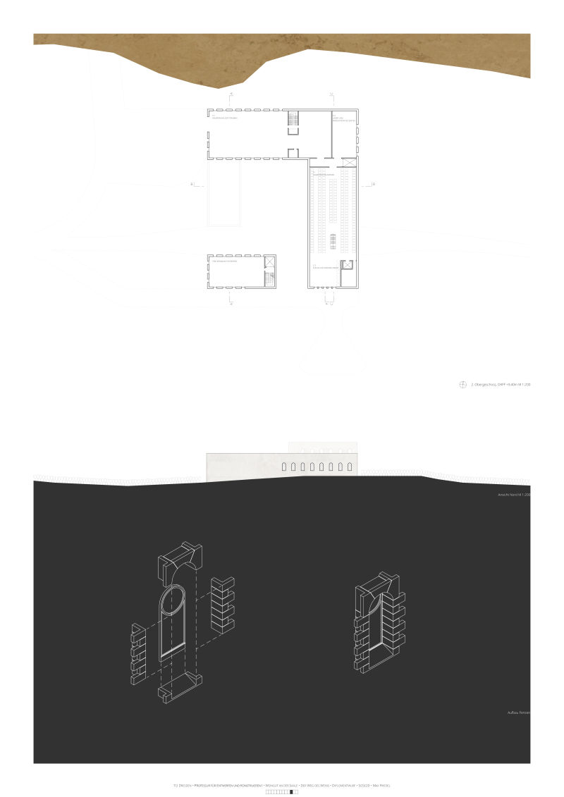
Entwurf eines Neubaus des Landesweingut Kloster Pforta in der Region Saale-Unstrut.


Diplomentwurf

Professur für Entwerfen und Konstruieren I
Prof. Benedikt Schulz
Technische Universität Dresden

Sommersemester 2020